Découvrez cette charmante maison de plain-pied de 98 m2 située à Argentré (12 km de Laval, première couronne) dans un lotissement.
Sa construction s’est terminée Décembre 2024.
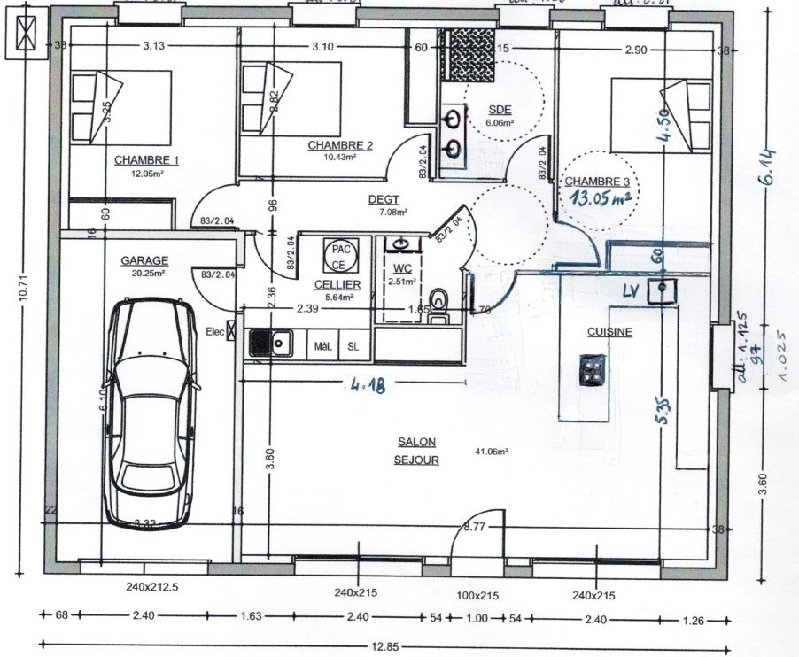
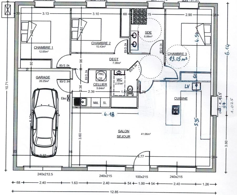
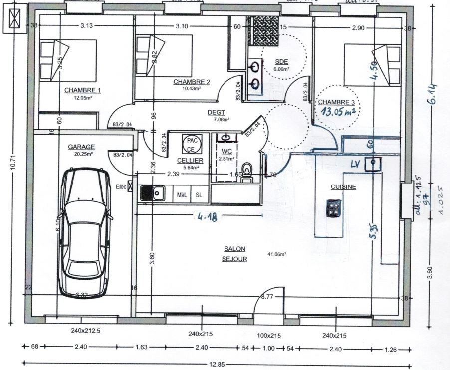
Elle offre un espace de vie lumineux de 41 m2 avec deux grandes baies vitrées exposées plein sud, une cuisine américaine entièrement équipée (plaque à induction, lave vaisselle, frigo encastré, four, micro onde, nombreux rangements).
Vous avez également trois chambres spacieuses de 13, 12 et 10 m2, une salle d’eau de 6.06 m2 avec douche à l’italienne, double vasque et sèche serviette.
La maison est équipée d’une pompe à chaleur avec ballon thermodynamique de 190 litres, assurant un confort thermique optimal avec des blocs réversibles (chauffage et climatisation).
Elle comprend un garage de 20,25 m2 et un cellier de 5,64 m2. Conçue selon les normes PMR, cette maison est idéale pour tous.
Le terrain de 614 m2 vas être aménagé avec une terrasse bois et une pelouse pour Octobre 2025.
Ne manquez pas cette opportunité unique !
Cette annonce vous est proposée par Saunière Jérôme – EI – NoRSAC: 885027722, Enregistré à Greffe du tribunal de commerce de Laval – Annonce rédigée et publiée par un Agent Mandataire –
Réf. de l'annonce : 2081
249 000 €
Honoraires à la charge du vendeur
-
98 m²
-
4 pièces
3 chambres
1 salle de bain
Description
50
1

Energie Finale :
21 kWhEF/m2/an
1

Date de la réalisation du diagnostic DPE : 05/03/2025
Les informations sur les risques auxquels ce bien est exposé sont disponibles sur le site Géorisques. https://www.georisques.gouv.fr
Montant estimé des dépenses annuelles d’énergie pour un usage standard :
entre 450 et 670 € par an
Année de référence pour l’estimation des couts annuels : 2000
Informations supplémentaires
Les essentiels
- Année 2024
- 4 pièces
- 3 chambres
- 1 salle de bain
Intérieur
- Cuisine Américaine - Equipée
- Garage : Oui
Extérieur
- Terrasse : Non
- Piscine : Non
- Jardin : Non
- Parking : Oui
Autres
- Balcon
Vous souhaitez visiter le bien
Siège social
Du Lundi au Vendredi
9h30-12h30, 14h-18h30
- 308 Rue Jean Jaurès,
- 49800 Trélazé
Contactez-nous
« * » indique les champs nécessaires
Biens similaires
Nouveauté
Maison de 96 m2 Laval proche commerces et terrain
Laval
Maison familiale avec grand terrain et garage
Saint-Fraimbault-de-Prières
Maison de 92 m2 avec grand garage et terrain arboré à Louverné
Louverné
Maison de 100 m2 sur terrain de 359 m2
Ernée
Exclusivité
Maison de 85,5 m2 avec terrain de 2611 m2
Saint-Pierre-sur-Orthe
Nouveauté
Maison plain pied quartier Gravier LAVAL
Laval
Exclusivité
Maison de 159m2 composée de 8 chambres + bureau et jardin sur une parcelle de 563m2
Angers
Exclusivité
Maison en lotissement sur la commune d’Aron
Aron
MAISON D’HABITATION
Ruaudin
Exclusivité
Magnifique maison rénovée en tuffeau avec dépendances, caves troglodytiques et potentiel de gîte
Saint-Léger-de-Montbrillais
Offre de reprise Entreprise du BTP secteur Pays de Loire
Angers
Exclusivité
RESTAURANT BAR DU MIDI
Angers










